猫と私のAwesome LifePurrfect Meow-zy
ライフステージ変化も頭をよぎりつつ、猫と暮らす最高の住まいを。
IT関連事業に従事しているRさんは、引っ越す以前は、愛猫1匹とマンション暮らしをしていました。
当時のコンパクトなマンション暮らしは、どこか自身と猫がのびのびと暮らせる環境ではないと感じていて、
一人暮らしで今後のライフステージの変化も頭をよぎりつつも、まず猫と暮らす最高の住まいを手に入れることを決意。
Rさんが最高の住まいを手に入れるために考えていた条件は3つ。
*大切な、愛猫と心地よく過ごせる住まいであること
*職場まで近く、徒歩と電車で通うことができる立地
*ライフステージの変化に柔軟に構えるために、コストをかけすぎず、リセールできる価値のある物件を取得すること
しわく堂との出会いは、雑誌やWEBで興味を持ってくださったことをきっかけに、
しわく堂主催の住宅耐震リノベセミナーにご参加され、ご要望を伺った上で、まずは物件探しから一緒にはじめることにしました。
「資産になる家」の条件
当初は中古再販物件を物色し、猫と暮らすための部分カスタマイズリノベを検討されていたRさん。
「資産価値」=「リセール価値」と考えた場合、大切なことは建物を「ラベリング」できるかどうかです。
2024年4月には、建築物の「省エネ性能表示」の義務化がスタートしました。
つまり「ラベリング制度」が仕組み化されたことを契機に、これまでの「広さ」や「駅からの距離」で捉えられていた不動産価値に「建物の性能」が加わる未来が目の前にきています。
「ラベリング制度」は、これまでわかりにくかった住まい「性能」が見える化されることにより、消費者が住まいを選ぶ際に、きちんと性能が評価されていることが建物の価値に直結するようになります。
これらを考慮して、Rさんには、リノベーションによって定量的に評価できる「耐震性能」や「省エネ性能」を獲得することを前提として、再販物件ではなく、築古中古物件のフルリノベーションをお勧めして物件ツアーを3度ほど実施しました。
新築建売住宅をリノベーションするという選択
そうして、土地探しからRさんの住まい作りがはじまりました。
希望エリアは、職場の2駅以内、駅から徒歩10分以内と明確な条件でした。さらに、女性の一人暮らしや、車の運転も苦手という点も考慮して、防犯性や、細い道や進入路の道路幅も必須なポイントでした。なかなか条件にあう物件が見つからず計画は膠着状態に。
そんな中、条件のエリアのなかで発見したのが今回のリノベーション のもとになっている新築建て売り物件です。
新築なので、耐震性はもちろん現行の基準をクリアしています。
今回の物件は性能表示の義務化前の物件でしたが、当社で調査した結果、条件をクリアしているラベリング可能な物件でした。
新築建売という選択をすることでRさんの条件の「資産になる家」を高松の中心部手に入れ、さらにリノベーションすることでコスパよくRさんの理想の住まいを作ることができる。1番良い条件で住宅ローン控除も受けられることも可能です。
新新築住宅をリノベーション するご提案を気に入っていただきRさんの住まいづくりが動き出しました。
猫にも環境にもお財布にも優しいサーキュラーエコノミーリノベ
サーキュラーエコノミー(循環経済)とは、従来の大量生産・大量消費・大量廃棄の経済モデルから脱却し、資源を効率的に循環利用することで、廃棄物を減らし、持続可能な社会を目指す経済システムです。
解体や新築時に、大量のエネルギーと廃棄物がでる住宅業界。世界の中でも住宅寿命のサイクルの短い日本では、サーキュラーエコノミーを意識したリノベーションは重要なポイントです。
特に新築建売を利用する今回のリノベーションでは、Rさんの理想の空間を叶えながらも「できるだけゴミを出さないこと」は結果、お財布にも優しい計画になります。
リノベーションの基本方針は、「解体は最小限、基本は足し算、ときどきトランスフォーム」としました。
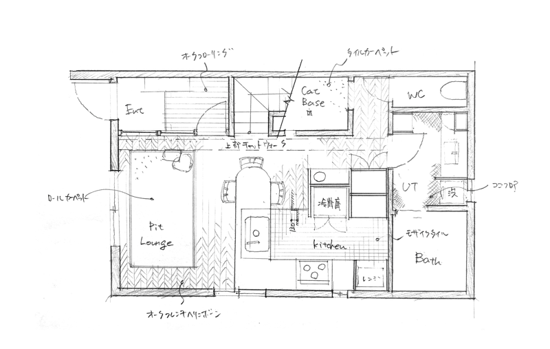
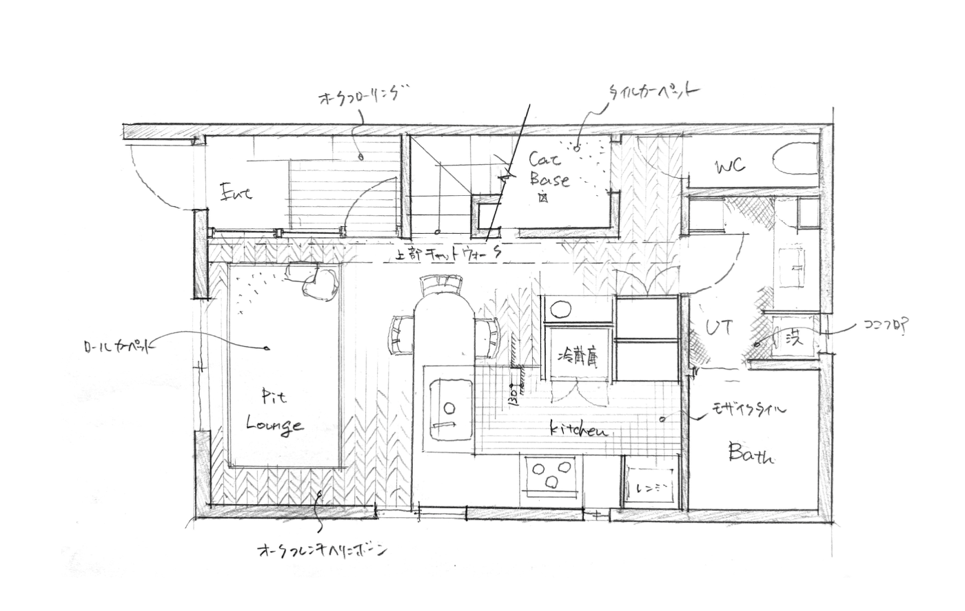
最小限の解体は、掘り下げたピットラウンジとキッチンの床まわり、1階LDKの天井、階段下や玄関との間仕切り部分です。
1階の天井は、猫と暮らすキャットウォークなどの設備を備えた立体的なLDK空間をつくるために、撤去して空間を高く確保しました。
天井を撤去した部分の補修は、壁紙をはがさずに使うために、ヒノキ合板を貼り足すことで補修しています。
Rさんこだわりのヘリンボーンの床材は、もとのベニヤフローリングの上に重ね貼り。
壁紙は剥がすことなくそのま使用し、補修部分も購入時に残されていたクロスのあまりものを貼り足しています。
猫の爪で傷むことが想定される壁の腰回り部分は、上からニレ材の腰板を貼ることで、デザインと機能性を両立させました。
木部はRさんと一緒にDIY塗装をしました。
2 階にあった小さな3室のうち、2室の間仕切り壁を撤去して、ワンルームに。こちらも当初の床壁天井はそのままに、撤去部分だけ目塞ぎの板材を足し算して補修しています。
キッチンの華麗なるトランスフォーム
新築建売住宅を購入した際は、LDKにシンプルなメーカ製のI型の対面キッチンが備え付けられていました。
ですが、猫とを暮らすために、開放的かつ、いたずら防止のための収納の工夫が必要だったため、今回は、このシステムキッチンを分解して組み替えて、新しい造作収納家具を組み合わせることでL型キッチンへとトランスフォームさせることにしました。
システムキッチンを極力使い切るために、水洗やレンジフード、食洗機等の設備はもちろん、本体キャビネット、金物、収納内部の引き出しの箱などは流用して、正面のオーク材の化粧面材とゴールド色の取手だけを付け替えました。
キャビネットのオーク材の部分がシステムキッチンを作り替えた部分、バーガンディカラーの部分が新設した部分です。
リビングから見える部分は、クラシックなコペンハーゲンリブを増し貼りしてあしらいました。
またキッチンは、キッチンワークトップと高さをテーブル付きで、揃えた小さな空間をより広くつかえるように工夫しています。
水がかりになるワークトップ部分は、クラシックで上品なテラゾー仕上げを採用しています。
愛猫暮らしニャンだフルな5つのポイント
其の一 猫だって高いところは苦手なのにゃ
キャットウォークは行き止まりがなく回遊できるデザインに。猫は高いところがお好き?と思いきや、実は猫も高いところは怖いらしく安心できるキャットウォークの幅を確保しました。
其の二 猫的ユニバーサルデザイン
ユニバーサルデザインとは、年齢、性別、能力、障害の有無などに関わらず、できる限り多くの人が利用しやすいように、製品や環境をデザインする考え方です。猫ちゃんとも一生長く快適に過ごしたいからこそ、キャットスッテプは幅や角度を緩やかにし、身体能力が衰えても長く住まいの中で運動できるようにしました。
其の三 隠す隠さないは猫様のキュンによりけり
身体能力が高く、高いところもひょいっと飛び移れちゃう猫ちゃんだからこそ、収納計画もポイントです。出ていると漁ってしまう食べ物などは全て収納できるようにしました。L字にしたキッチンは収納力抜群。新たにカップボードも製作しました。
其の四 安心できるお篭りトイレは匂い対策もバッチリ
ペットを飼うときに必ず考えないといけないトイレの位置。生活の中で目立たせたくないトイレは、天井も低く猫も落ち着く階段下に設置。
汚れても洗えるカーペットや、匂い対策のために背面に換気扇を設けるなど機能性も考慮しています。
其の五 家猫と外の距離感のつくり方
基本的に外に出ることのない家猫にとって、窓から見える景色は人間で言うところのテレビを見る感覚。ちょうちょが飛んできたり、動いているものが見えたり、楽しい娯楽的な場所ですが、外猫との出会いはちょっと刺激が強すぎるようです。
猫が安心できるように掃き出し窓にはプランターを製作しました。
アルチザンを愛でる暮らし
インテリアにもそここちらにRさんのセンスが光ります。特に拘ったのは洗面台。ここだけは既存の洗面台は廃棄しお気に入りの空間にしました。
お気にいりのものをミックスさせながら作っていく空間。抽象的なアラベスク模様や、曲線、オリエンタルな中にコンテンポラリーさも感じます。
本日もごろごろと猫を愛でたいと思います
リビングは1段床を下げてピットリビングに。
もともとごろごろできる大きなソファを置きたいというご希望でしたが、大きなソファは空間に圧迫感を与えます。
床を一段下げることで、空間をさらに広く感じることができ、絨毯やクッションを敷き詰めることで、空を眺めたり、映画を見たり、日向ぼっこしたり、読書したり。猫と一緒にお好みの場所でごろごろすることができます。
完成した住まいで、念願の多頭飼いも開始。Rさんと猫たちのAwesaome Lifeがはじまりました。
OUTLINE
| PJ title | Purrfect Meow-zy |
|---|---|
| Place | 香川県高松市 |
| Building type | 個人邸 | 木造2階建 | 延床面積81.98㎡ |
| Complete | 2024.10 |
| Director | 平宅正人 |
| Designer | 平宅正人・金子大海 |
| Construction | 彩工舎 |
| Photo | 合同会社FIZM(藤岡 優) |



